ZDLN电动高温调节阀
发布时间:2013/9/7 16:05:42
一、高温电动双座调节阀 概述
【高温型电动调节阀】基本说明 产品名称:电子式电动套筒调节阀产品特点电子式电动套筒调节是由3810L系列电子式电动执行机构和套筒调节阀组成,电动执行机构内有伺服系统,无须另配伺服放大器,电子式控制单元被设计成匣子形式,并用树脂浇铸驱动量反馈检测采用高性能导电塑料电位器,是具有1/250分辨能力的高可靠性产品,连线极为简单,只需配DC4~20mA或DC1~5V输入信号AC单相电源线即可控制运转,调节机构采用平衡式阀塞结构,具有阀稳定性好,不易震动,噪音低,对温度敏感性小,允许使用压差较大特点。使用于流量大,泄漏量要求不严格的场合。
【高温型电动调...
二、主要技术参数和性能指标
1、主要技术参数
| 公称通径DN(mm) |
25 |
32 |
40 |
50 |
65 |
80 |
100 |
125 |
150 |
200 |
250 |
300 |
|
|
阀座直径DN(mm) |
26,24 |
32,30 |
40,38 |
50,48 |
66,64 |
80,78 |
100,98 |
125,123 |
150,148 |
200,197 |
252,248 |
303,297 |
|
|
额定流量数Kv |
10 |
16 |
25 |
40 |
63 |
100 |
160 |
250 |
400 |
630 |
1000 |
160 |
|
|
流量持性 |
直线、等百分比 |
||||||||||||
|
公称压力PN(MPa) |
1.6,4.0,6.4 |
4.0,6.4 |
|||||||||||
|
连接型式 |
JB/T79-1994 |
||||||||||||
|
配用执行机构型号 |
DKZ-310 |
DKZ-410 |
DKZ-410 |
DKZ-510 |
|||||||||
|
出轴推力(N) |
4000 |
6400 |
6400 |
16000 |
|||||||||
|
行程L(mm) |
16 |
25 |
40 |
60 |
100 |
||||||||
|
全行程时间(s) |
12.5 |
20 |
32 |
37 |
62 |
||||||||
|
作用方式 |
电开式(K)常用;电关式(B) |
||||||||||||
|
输入信号 |
0~10mA4~20mADC |
||||||||||||
|
供电电源 |
220V;50~60Hz |
||||||||||||
|
固有可调比R |
30:1 |
||||||||||||
2、主要技术性能范围
| 项目 |
技术性能指标 |
|
基本误差% |
≤±5 |
|
回差% |
≤3 |
|
死区% |
≤5 |
|
汇漏量 |
0.01%X阀额定容量 |
|
额定流量系数误差% |
≤±10 |
3、阀门材料和适用温度范围
| 阀体材料 |
材料牌号 |
公称压力 |
适用温度范围(℃) |
|
|
常温型 |
高温型 |
|||
|
铸钢 |
WCB |
4.0,6.4 |
-40~250 |
-40~450 |
|
不锈钢 |
0Cr18Ni9 |
4.0,6.4 |
-40~250 |
-60~450 |
4、允许压差
标准组配的电动双座调节阀考虑到介质对阀芯、阀座的冲蚀和高压差引起的噪声、振动,一般情况下,阀的压差不应超过1MPa,如压差较高,则应采取相应的工艺措施。
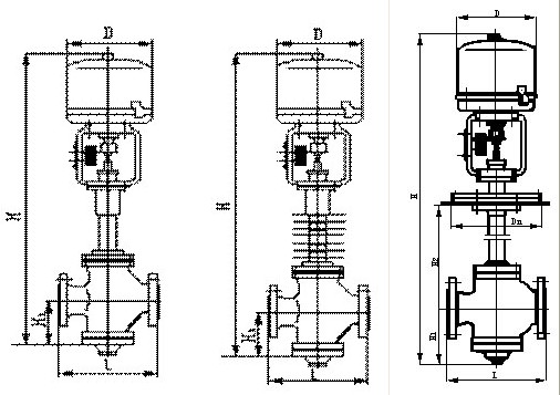
5、外形尺寸
| 公称通径(mm) |
AxB |
L |
H1 |
H2 |
|||
|
PN1.6 |
PN4.0 |
PN6.4 |
常温型 |
高温型 |
|||
|
25 |
230x460 |
185 |
190 |
200 |
670 |
820 |
104 |
|
32 |
200 |
210 |
210 |
673 |
823 |
107 |
|
|
40 |
220 |
230 |
230 |
693 |
843 |
126 |
|
|
50 |
250 |
255 |
255 |
698 |
848 |
131 |
|
|
65 |
275 |
285 |
285 |
799 |
959 |
175 |
|
|
80 |
230x530 |
300 |
310 |
310 |
809 |
969 |
190 |
|
100 |
350 |
355 |
355 |
821 |
981 |
202 |
|
|
125 |
410 |
425 |
425 |
872 |
1087 |
250 |
|
|
150 |
450 |
460 |
460 |
882 |
1097 |
260 |
|
|
200 |
260x630 |
550 |
560 |
560 |
924 |
1139 |
302 |
|
250 |
670 |
660 |
660 |
1156 |
1368 |
422 |
|
|
300 |
740 |
785 |
785 |
1215 |
1427 |
484 |
|
6、 型号说明
|
类型 |
标准型 |
低温型 |
散热型 |
波纹管型 |
夹套保温型 |
调节切断型 |
衬氟型 |
|
代号 |
无 |
D |
G |
W |
J |
Q |
F |
